












This well-presented 3-bedroom home offers outstanding value for both first-home buyers and savvy investors alike. With a strong rental return already in place and a central Wingham location, it’s the kind of property that makes smart sense now and for the future.
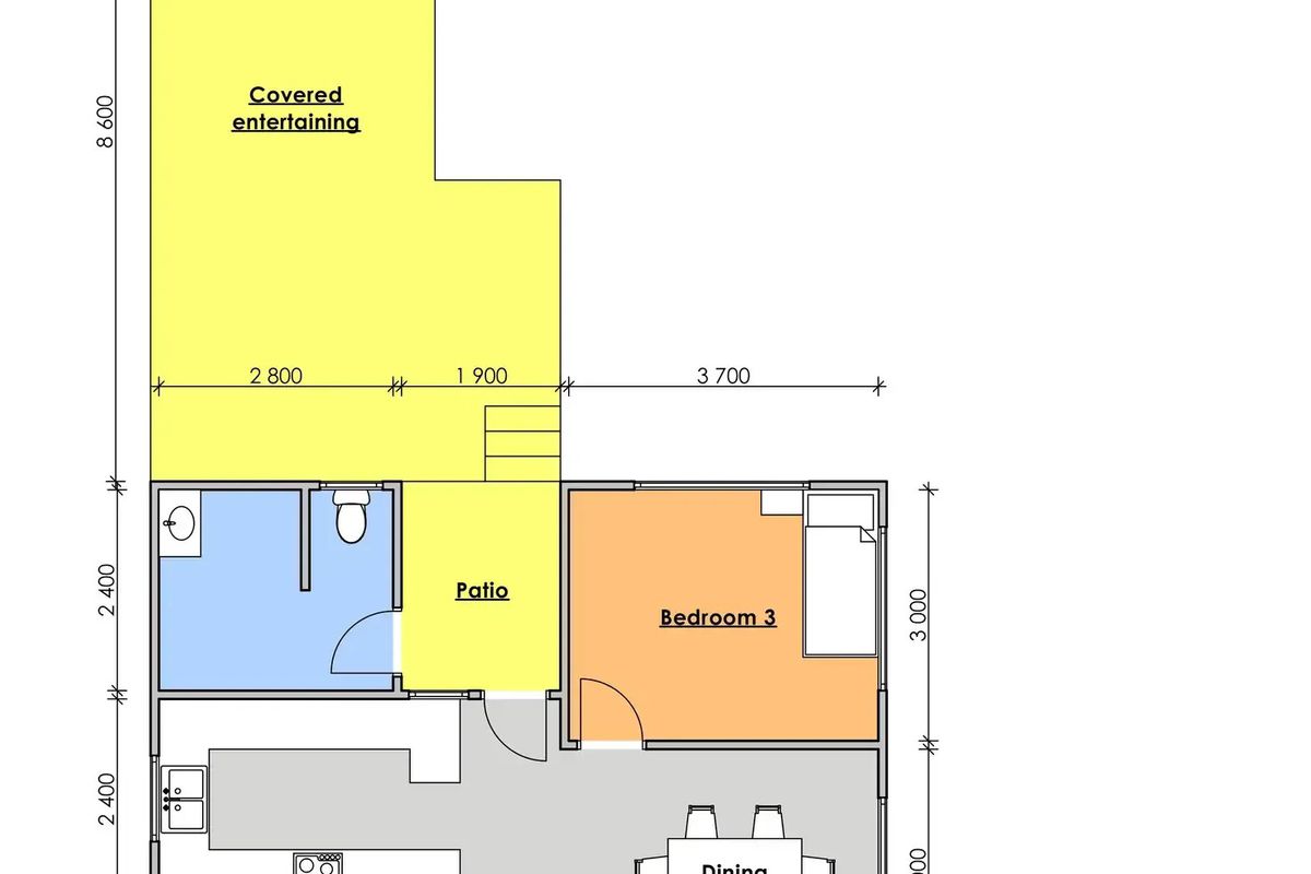
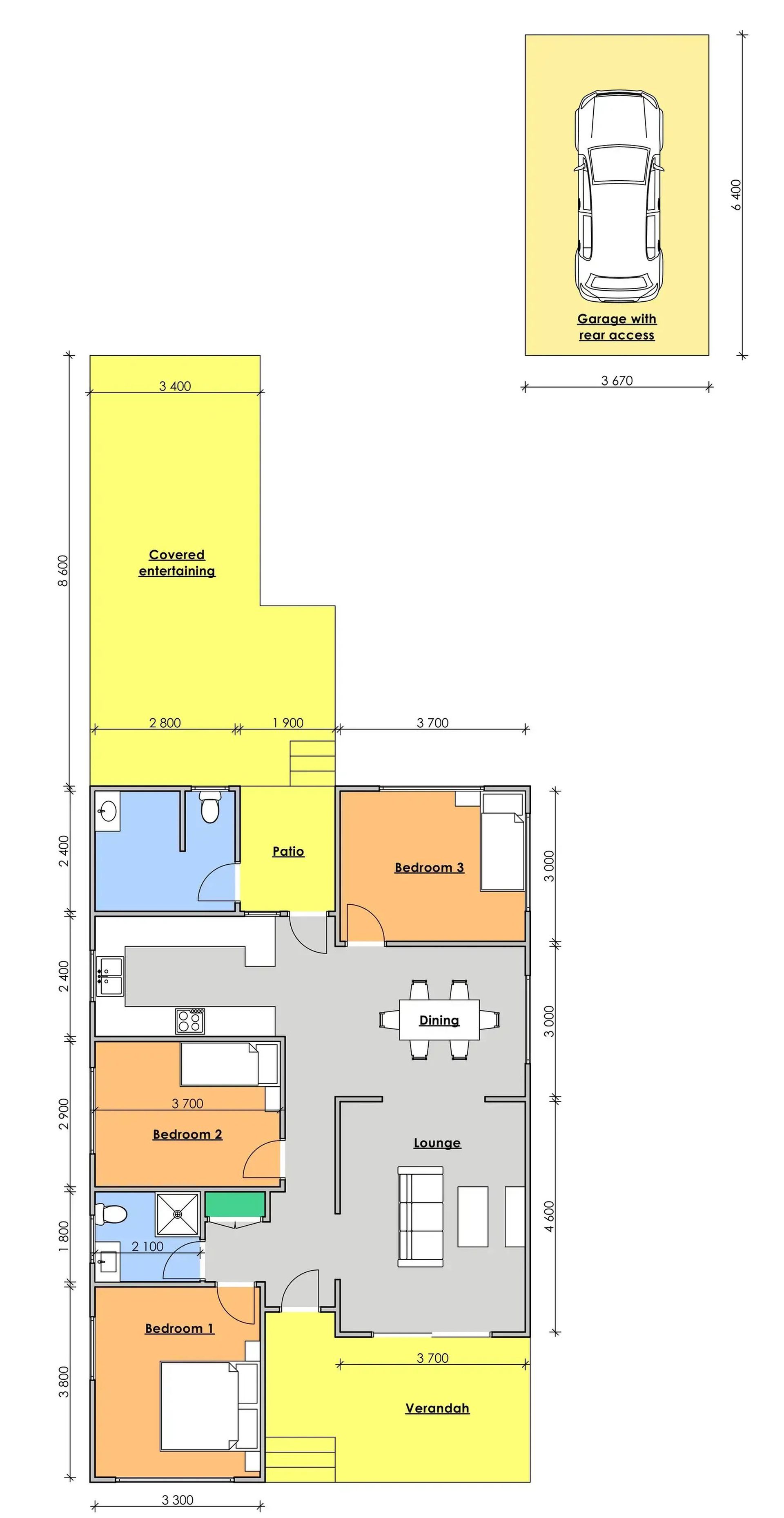
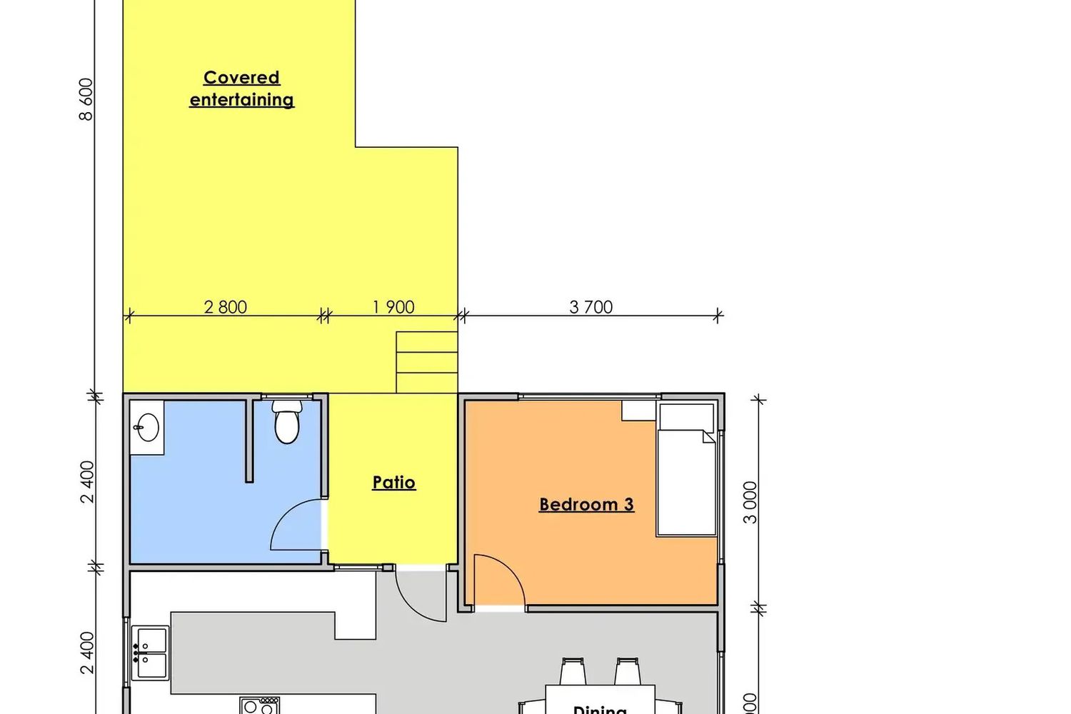
Step inside and you’ll find a comfortable, easy-living layout featuring generous bedrooms, air conditioning for year-round comfort, and a practical kitchen that’s ready to enjoy as-is. The lock-up garage provides secure parking, plus the rear lane access adds extra convenience. Set on a 543sqm block, there’s space to enjoy without the upkeep.
All of this positioned just a short stroll to Wingham’s cafés, schools, shops and main street — the lifestyle here is effortless.
At a Glance:
-3 well-sized bedrooms
-Main bathroom plus second toilet in the laundry
-Lock-up garage for secure parking
-Rear lane access
-543sqm block
-Air conditioning for comfort throughout the seasons
-Short walk to Wingham CBD, schools, dining & services
Investors: Currently returning a strong $640 per week – a reliable income with solid long-term rental appeal.
First-home buyers: Move in and enjoy immediately, with room to personalise and add value over time.
Affordable, comfortable, and incredibly convenient — opportunities like this don’t last long.
Contact Kayne Tisdell today on 0410 402 690 to arrange your inspection.
















Subscribe to get the latest insider tips, market updates and access to the hottest deals as they come on the market.