



























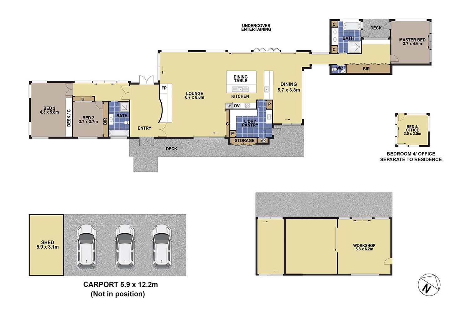
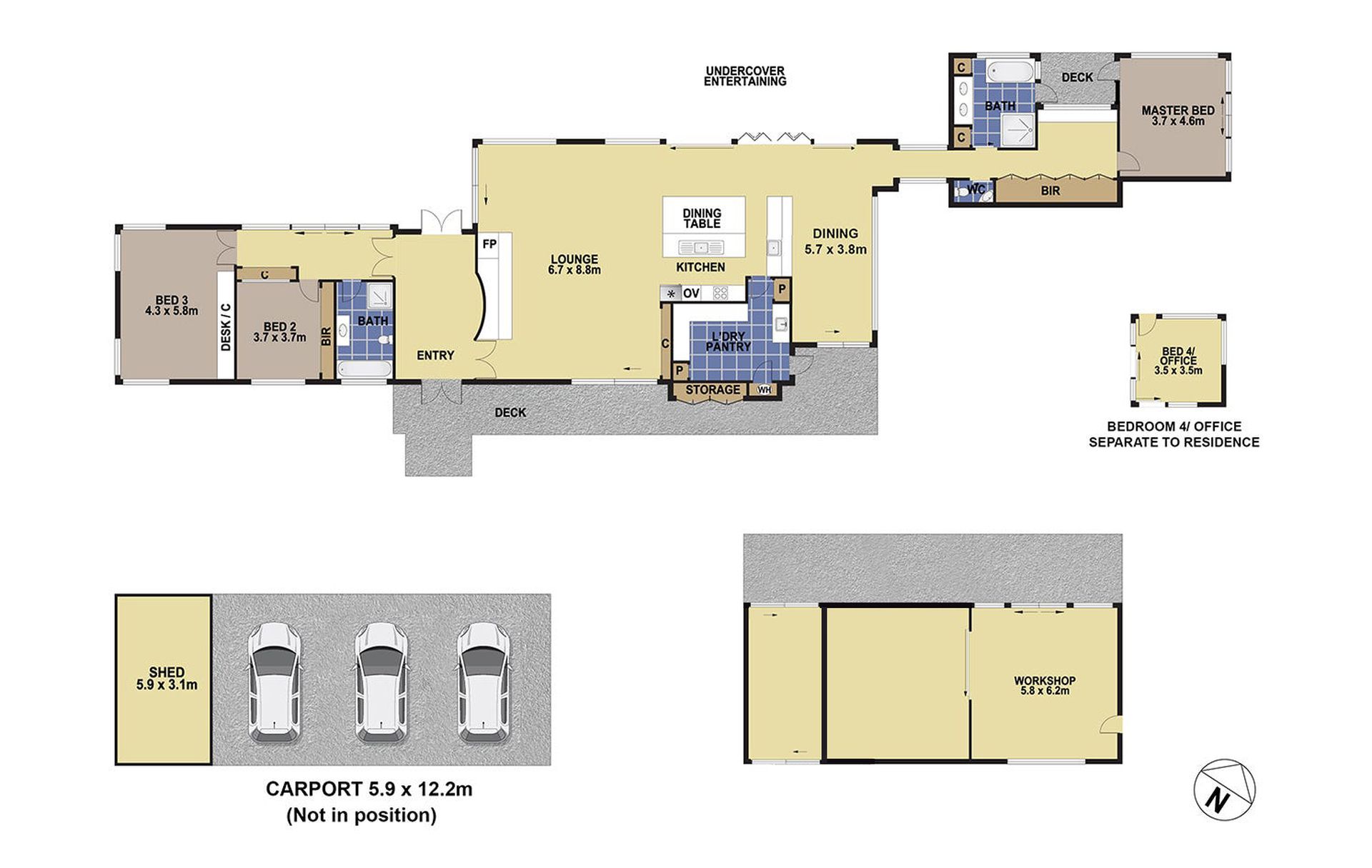
Tucked away in pristine bushland, this architecturally (Kevin Snell) designed sanctuary redefines modern rural living. Thoughtfully crafted with sustainability and elegance in mind, this four-bedroom, two-bathroom home embraces passive solar design to provide year-round comfort with minimal environmental footprint.
From the moment you enter, the craftsmanship is unmistakable. Polished timber floors transition seamlessly into soft carpets, while raked ceilings and louvered windows invite natural northerly light and breezes throughout. The spacious open-plan layout flows effortlessly from a central living area including a gourmet kitchen featuring island bench, gas cooktop, double ovens, and breakfast bar, to a breathtaking alfresco area via bi-fold doors, ideal for entertaining or peaceful mornings immersed in nature.
The main bedroom/parent private retreat sits in its own wing and provides a touch of indulgence, boasting a walk-through robe and elegant ensuite with double vanity, picture windows, and a deep soaking tub. Additional bedrooms sit in the other wing with a built-in wardrobe and desk space with captivating bushland views, blurring the line between indoors and out. Outside, resort-style living continues with two tiled patios, a covered breezeway, and a sparkling in-ground saltwater pool - the ultimate entertainer’s haven. A separate studio provides flexible space for creativity, guests, or a work-from-home office, while a large machinery shed and four-car carport add practicality to this impressive offering.
Set across undulating to hilly terrain, the partly fenced acreage balances beautifully landscaped areas with untouched native bush. With four large water tanks, power connected, solar panels with battery, and three dams, the land is as functional as it is picturesque - a haven of privacy, space, and natural beauty.
More than a home, this is a lifestyle - where architectural brilliance, eco-conscious design, and serene bushland surrounds create a retreat like no other.
*Please Note* Sat nav will not find this property, the easiest way to find it is if you are taking the Highway turn onto Wootton Way, Wootton. Travel along until you reach Wattley Hill Road turn off. Travel along Wattley Hill Road until you reach the turn off for Hubbards Rd North, Topi Topi.
#Please note that while every effort has been made to accurately represent the features and amenities of the property described in this advert. Prospective buyers are encouraged to conduct their own inspections and assessments to verify the details provided. We do not guarantee the accuracy or completeness of the information presented herein.




























































































































































































Subscribe to get the latest insider tips, market updates and access to the hottest deals as they come on the market.