



































set on approximately 14.42 hectares (35.7 acres) with over one kilometre of pristine creek frontage, this exceptional rural holding offers a rare combination of privacy, productivity and natural beauty. The property features mostly cleared paddocks complemented by timbered gullies and creek banks, creating a picturesque and functional landscape. Gently undulating terrain opens into expansive, fertile alluvial flats, all tucked away within a rich, secluded valley that enjoys complete privacy and stunning views across the surrounding timbered escarpment.
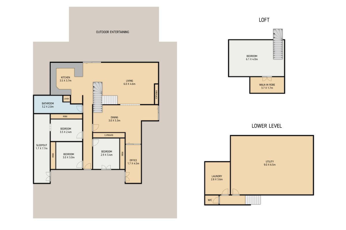
The three to four bedroom homestead Plus study and sleepouts, is full of warmth and character, showcasing timber finishes throughout and a loft-style main bedroom that adds charm and individuality. The home offers multiple cosy nooks ideal for reading, study or creative spaces, while the large country-style kitchen and family living area forms the heart of the home. This space flows seamlessly onto an impressive covered entertaining deck, perfectly positioned to capture elevated rural outlooks.
A unique third level houses the washroom and cellar, with direct internal access into the home. Wide, sweeping verandahs and a high-pitched roof complete this quintessential country cottage, blending comfort with timeless rural appeal. For those that are creative there is also a seperate studio which could have mulitiple uses,
The property is well equipped for agricultural use, featuring multiple large machinery sheds, quality stock yards with a roofed working area and cattle crush, and fencing divided into six paddocks to support efficient livestock rotation.
Adding further appeal, a dedicated campground area with its own separate access provides an ideal private retreat or income opportunity. This area fronts a large, deep permanent swimming hole, offering year-round water and an idyllic setting for recreation and relaxation.
A truly special rural holding offering lifestyle, productivity and natural beauty in equal measure.
*Please note that while every effort has been made to accurately represent the features and amenities of the property described in this advert. Prospective buyers are encouraged to conduct their own inspections and assessments to verify the details provided. We do not guarantee the accuracy or completeness of the information presented herein.*




































































































































Subscribe to get the latest insider tips, market updates and access to the hottest deals as they come on the market.